Тепловой расчёт промышленного парогенератора K-50-40-1
4. Расчет теплообмена в топке
Расчёт полной площади стен топочной камеры и сумарной лучевоспринимающей поверхности топки представлен в таблицах 4.1 ,4.2, 4.3
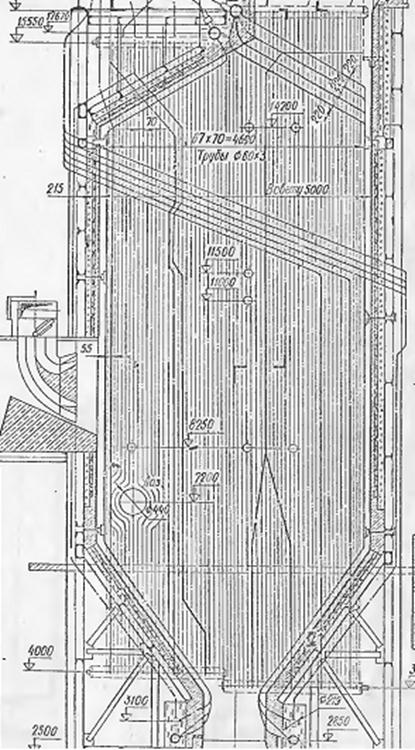
На рис.2 представлена схема топочной камеры
ТАБЛИЦА 4.1Расчет полной площади стен топочной камеры (Fст) и суммарной лучевоспринимающей поверхности топки (Hл)
|
Наименование |
Обоз-наче-ние |
Еди-ница |
Фр.и свод |
Боко-вые |
Задн |
Вых. окно |
S |
|
Полная площадь стены и выходного окна |
FСТ |
м2 |
84.6 |
130 |
66.53 |
16.63 |
297.76 |
|
Расстояние между осями крайних труб |
b |
м |
5.11 |
5,88 |
5.11 |
5.11 | |
|
Освещённая длина труб |
L |
м |
15,08 |
8,625 |
12,08 |
2,97 | |
|
Площадь, занятая лучевоспринимающей поверхностью |
F |
м2 |
77.05 |
120 |
61.73 |
15.18 |
273.96 |
|
Наружный диаметр труб |
d |
мм |
60 |
60 |
60 |
60 | |
|
Шаг труб |
s |
мм |
70 |
70 |
70 |
70 | |
|
Расстояние от оси труб до кладки (стены) |
e |
мм |
125 |
75 |
125 |
125 | |
|
Отношение |
s/d |
- |
1.17 |
1.17 |
1.17 |
1.17 | |
|
Отношение |
e/d |
- |
2.1 |
1.25 |
2.1 |
2.1 | |
|
Угловой коэффициент |
x |
- |
0.98 |
0.98 |
0.98 |
0.98 | |
|
Площадь лучевоспринимающей поверхности открытых экранов |
HЛОТК |
м2 |
75.51 |
117,6 |
60.5 |
14.88 |
268.5 |
ТАБЛИЦА 4.2Расчёт конструктивных характеристик топки
|
Величина |
Единица |
Расчёт | ||
|
Наименование |
Обозначение |
Расчётная формула или способ определения | ||
|
Активный объём топочной камеры |
|
По конструктивным размерам |
м3 |
222 |
|
Тепловое напряжение объёма топки: расчётное допустимое |
|
По табл. 4–3 |
кВт/м3 кВт/м3 |
|
|
Количество горелок |
n |
По табл. III–10 |
шт. |
4 |
|
Тепло производительность горелки |
|
|
МВт |
|
|
Тип горелки |
— |
По табл. III–6 |
— |
ГУ-1-Л |
Рис.2 Топочная камера
Другие рефераты на тему «Физика и энергетика»:
- Исследование модели электролитического осаждения меди
- Изучение закономерностей реабсорбции излучения донора на триплетных молекулах акцепторов энергии
- Исследование магнитной жидкости методом рассеяния света
- Исследование непрерывных сигналов с помощью осциллографа
- Реактивное движение в природе и технике
Поиск рефератов
Последние рефераты раздела
- Автоматизированные поверочные установки для расходомеров и счетчиков жидкостей
- Энергосберегающая технология применения уранина в котельных
- Проливная установка заводской метрологической лаборатории
- Источники радиации
- Исследование особенностей граничного трения ротационным вискозиметром
- Исследование вольт-фарадных характеристик многослойных структур на кремниевой подложке
- Емкость резкого p-n перехода
