Стальная рабочая площадка промздания
Содержание
1. Введение
2. Исходные данные
3. Компоновка поперечной рамы
4. Определение нагрузок
4.1 Постоянная нагрузка
4.2 Снеговая нагрузка
4.3 Крановая нагрузка
4.3.1 Расчёт на вертикальную нагрузку
4.3.2 Расчёт на горизонтальную нагрузку
4.3 Ветровая нагрузка
5. Статический расчёт
5.1 Расчёт на постоянную и снеговую нагрузку
5.2 Расчёт н
а вертикальное давление крана
5.3 Расчёт на торможение
5.4 Расчёт на ветровую нагрузку
6. Расчётные сочетания усилий
6.1 Определение РСУ
7. Расчёт и конструирование верхней части стержня ступенчатой колонны
7.1 Определение расчётной длины колонны в плоскости рамы
7.2 Определение расчётной длины колонны из плоскости рамы
7.3 Конструктивный расчёт подкрановой части колонны
8. Конструктивный расчёт подкрановой части стержня ступенчатой колонны
8.1 Расчёт подкрановой части сплошного сечения
9. Расчёт и конструирование узла сопряжения верхней и нижней частей колонны
10. Расчёт и конструирование базы колонны
10.1 Проектирование и расчёт базы под колонну со сплошной подкрановой частью
10.2 Расчёт анкерных болтов
11. Расчёт и конструирование стропильной фермы
11.1 Конструктивная схема фермы
11.2 Конструкция кровли
11.3 Нагрузки на стропильную ферму
11.4 Определение усилий в элементах фермы
11.5 Конструирование и расчёт в элементах фермы
11.6 Расчёт сварных соединений в ферме
Используемая литература
1. Введение
Расчетно-графическая работа разработана на основании задания на проектирование, выданного кафедрой металлических конструкций Нижегородского государственного архитектурно-строительного университета.
Цель курсовой расчетно-графической работы:
- приобретение навыков в решении основных вопросов проектирования металлических конструкций;
- освоение методики компоновки простейших сооружений, выполняемых в металле;
- определение нагрузок;
- выбор расчётных схем элементов, входящих в состав сооружения;
- расчёт и конструирование несущих элементов балочной клетки, центрально нагруженных колонн и их узлов.
2. Исходные данные
Здание однопролётное отапливаемое, без фонаря.
Класс ответственности – II.
Кровля лёгкая по прогонам.
Стеновое ограждение самонесущее.
Здание с мостовым краном
Пролёт – L = 30м.
Длина здания – 120м.
Шаг колонн – Bcol = 12м.
Шаг ферм – Brt = 12м.
Отметка головки кранового рельса – Ht = 11,05м.
Грузоподъёмность крана – Q = 50т.
Режим работы крана – 4К-6К.
Климатический район строительства – II4.
Снеговой район – 4.
Ветровой район – 4.
Класс бетона B12,5; Rbn = 9,5 МПа.
Монтаж производится на болтах.
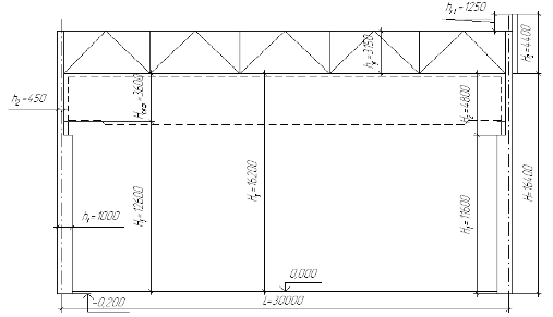
3. Компоновка поперечной рамы
1. Расстояние от головки подкранового рельса до низа несущих конструкций покрытий.
где f = 200¸400 – зазор, учитывающий прогибы конструкций покрытия, принимаем =350мм;
Hc = габаритная высота крана принимаемая по ТУ24-9-456-76 на краны (т II.1(3)).При Q = 50т, Hc = 3150мм;
100 – конструктивный зазор.
2. Полезная высота цеха.
увеличиваем Ht из условия кратности 1,8 принимаем HS =1,8 · 9 = 16,2м.
3. Длина верхней части колонны.
здесь hc.b – высота подкрановой балки равной 1м;
hr.a – высота рельса при Q = 50т, к.р.80 hr.a = 130мм.
4. Полная высота рамы.
здесь Hb = заглубление базы колонны ниже отметки пола принимаем 200мм.
5. Длина нижней части колонны.
6. Полная высота шатра.
где h1rt = 3150мм – высота фермы на опоре для типовой серии 1.460.2-10 с элементами из парных уголков;
hр = 1250мм – высота парапета.
7. Высота поперечного сечении верхней части колонны.
8. Высота поперечного сечения нижней части колонны.
где b0 = 250мм – привязка наружной грани колонны к разбивочной оси;
l1 =750мм – расстояние от разбивочной оси ряда колонны до оси подкрановой балки.
здесь В1 = 300мм – при Q = 50т, по(т II.1(3));
, условие выполняется.
9. Компоновка каркаса по таблицам II.12; II.13.
Hc = 3150; Hcom = 3600; Ht = 12600; HS = 16200; H2 = 4800; h1 = 1000; h2 = 450;
;
;
;
Рис.1 Геометрическая схема поперечной рамы
4. Определение нагрузок
4.1 Постоянная нагрузка
- Расчётную постоянную нагрузку от веса покрытия определяем в табличной форме по (т II.2(3))
Таблица №1
|
Элементы покрытия |
Нормативная нагрузка |
Коэффициент надёжности по нагрузке |
Расчётная нагрузка |
|
1. Профилированный настил Н57-750-0,8 |
0,1 |
1,05 |
0,11 |
|
2. Минераловатная плита повышенной жёсткости t = 100мм |
0,24 |
1,2 |
0,29 |
|
3. Профилированный лист марки НС-30-750-0,6 |
0,07 |
1,05 |
0,074 |
|
4. Собственный вес металлической конструкции шатра (ферма, связи, прогоны) |
0,3 |
1,05 |
0,32 |
|
Итого: |
0,7 |
1,143 |
0,8 |
Другие рефераты на тему «Строительство и архитектура»:
- Изготовление пролетного строения кольцевой автомобильной дороги вокруг г. Санкт-Петербурга
- Строительство одноквартирного двухэтажного пятикомнатного дома
- Глиняная мастерская
- Улучшение теплового и гидравлического режима системы теплоснабжения п. Победа г. Хабаровска
- Планирование мощности и материально-технического обеспечения строительного производства
