Фундаменты мелкого и глубокого заложения
Ssi = 1.32 см
|  | 
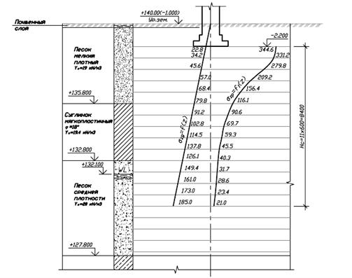
Рисунок 2. Эпюры напряжений в основании фундамента Ф1.
Расчет осадки фундамента Ф3:
Напряжение от собственного веса грунта на уровне подошвы фундамента
:
l × b = 3.3×3 м.
 
 
 
 
Расчет осадки фундамента выполняем в табличной форме.
Расчет осадок для фундамента Ф3.
Таблица 3
| № слоя | Z, м | szg | x=2z/b | a | szp | szpi | Ei, Мпа | si, см | 
| 0 1 2 3 4 5 6 7 8 9 10 | 0.0 0.9 1.9 2.9 3.9 4.5 5.1 5.6 6.3 7.0 7.6 | 22.8 39.9 57.0 74.1 85.7 97.4 109.0 120.7 132.3 143.9 155.6 | 0.00 0.6 1.3 1.9 2.6 3.0 3.4 3.7 4.2 4.7 5.1 | 1.00 0.885 0.592 0.37 0.24 0.19 0.154 0.131 0.106 0.087 0.075 | 344.6 304.9 204.0 127.5 82.7 65.5 53.1 45.1 36.5 29.9 25.8 | 324.8 254.5 165.8 105.1 74.1 59.3 49.1 40.8 33.3 27.9 | 38.0 12 12 12 30 30 30 30 30 30 | 0.41 1.02 0.66 0.42 0.12 0.09 0.08 0.07 0.05 0.04 | 
 Ssi = 2.96 см
Ssi = 2.96 см 
Рисунок 3. Эпюры напряжений в основании фундамента Ф3.
2.4 Расчет осадки фундамента во времени
Сущность расчета заключается в определении величины осадки фундамента в заданные промежутки времени:
 
 
Где U – степень консолидации;
S – конечная осадка.
Степень уплотнения определяется по формуле:
 
 
где  - коэффициент времени, зависящий от физических свойств грунта, толщины слоя, условий и времени консолидации; определяется по формуле:
- коэффициент времени, зависящий от физических свойств грунта, толщины слоя, условий и времени консолидации; определяется по формуле: 
 
 
откуда
 
 
откуда
 
 
Здесь:  – коэффициент фильтрации, см/год;
– коэффициент фильтрации, см/год; 
 - коэффициент относительной сжимаемости.
- коэффициент относительной сжимаемости. 
 
 
Параметры U и  функционально связаны и задаваясь U, можно определить
функционально связаны и задаваясь U, можно определить  
 
Расчет осадки фундамента Ф1 во времени.
Расчет будем производить для суглинка.
Вычислим значение коэффициента консолидации:
 
 
Задаемся значениями степени консолидации U: 0.2; 0.4; 0.6; 0.8; 0.95.
Вычисляем время по формуле, имея в виду что фильтрация двухсторонняя.
 
 
Таким образом, получаем:
 = 0.2 х 1.35 = 0.27 см;
= 0.2 х 1.35 = 0.27 см;  = 1.3 х 0.08 = 0.104 года
= 1.3 х 0.08 = 0.104 года 
 = 0.4 х 1.35 = 0.54 см;
= 0.4 х 1.35 = 0.54 см;  = 1.3 х 0.31 = 0.40 года
= 1.3 х 0.31 = 0.40 года 
 = 0.6 х 1.35 = 0.81 см;
= 0.6 х 1.35 = 0.81 см;  = 1.3 х 0.71 = 0.92 года
= 1.3 х 0.71 = 0.92 года 
 = 0.8 х 1.35 = 1.08 см;
= 0.8 х 1.35 = 1.08 см;  = 1.3 х 1.4 = 1.82 года
= 1.3 х 1.4 = 1.82 года 
 = 0.95 х 1.35 = 1.28 см;
= 0.95 х 1.35 = 1.28 см;  = 1.3 х 2.8 = 3.64 года
= 1.3 х 2.8 = 3.64 года 
 График осадки фундамента Ф1 во времени
График осадки фундамента Ф1 во времени 
Расчет осадки фундамента Ф3 во времени.
Вычислим значение коэффициента консолидации:
 
 
Задаемся значениями степени консолидации U: 0.2; 0.4; 0.6; 0.8; 0.95.
Вычисляем время по формуле, имея в виду что фильтрация двухсторонняя.
 
 
Таким образом, получаем:
 = 0.2 х 3.24 = 0.648 см;
= 0.2 х 3.24 = 0.648 см;  = 1.3 х 0.08 = 0.104 года
= 1.3 х 0.08 = 0.104 года 
 = 0.4 х 3.24 = 1.296 см;
= 0.4 х 3.24 = 1.296 см;  = 1.3 х 0.31 = 0.40 года
= 1.3 х 0.31 = 0.40 года 
 = 0.6 х 3.24 = 1.944 см;
= 0.6 х 3.24 = 1.944 см;  = 1.3 х 0.71 = 0.92 года
= 1.3 х 0.71 = 0.92 года 
 = 0.8 х 3.24 = 2.59 см;
= 0.8 х 3.24 = 2.59 см;  = 1.3 х 1.4 = 1.82 года
= 1.3 х 1.4 = 1.82 года 

 = 0.95 х 3.24 = 3.078 см;
= 0.95 х 3.24 = 3.078 см;  = 1.3 х 2.8 = 3.64 года
= 1.3 х 2.8 = 3.64 года 
График осадки фундамента Ф3 во времени.
3. Вариант свайных фундаментов
3.1 Выбор типа и конструкции свай и свайного фундамента. Назначение глубины заложения ростверка
Тип свайного фундамента выбирается в зависимости от особенностей конструктивных решений надфундаментных конструкций, характера передачи нагрузки на фундаменты. В нашем случае применяем как вариант фундамента Ф1 Ленточный свайный фундамент состоящий из из свай располагаемых в два ряда и безбалочного мнолитного ростверка, а для фундамента Ф3применяем вариант свайного фундамента под колонны каркасных зданий, состоящие из группы свай и ростверка.

 Скачать реферат
 Скачать реферат